Crescent Park Addition Progress Report to the Board of Education - May 15, 2024
Since last month the following have occurred:
- Meeting with engineer to review Fee Schedule Proposal.
- Meeting with engineer to go over tender spec requirements.
- Meeting with Engineer, Mechanical Engineer and Electrical Engineer at site to review requirements for design and tender specs.
Geo tech testing is scheduled for May 11th pending drill truck availability. Force Engineering will be doing existing building design confirmation May 6 – 10.
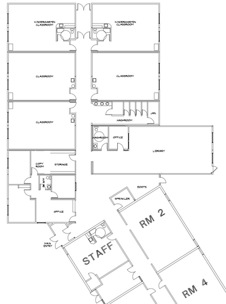
A conceptual design based on Crescent Park staff, PAC feedback as well as follow-up discussions between Principal and Facilities staff is shown below.

